Rooms
Property Features
- Part Exchange available
- Fully furnished
- Community living
- Pet friendly
- Two bedrooms
- Over 50s
- Exceptionally high specification
- Brand new home
- Modern design
- Stamp Duty exempt
Full Details
THE HOME
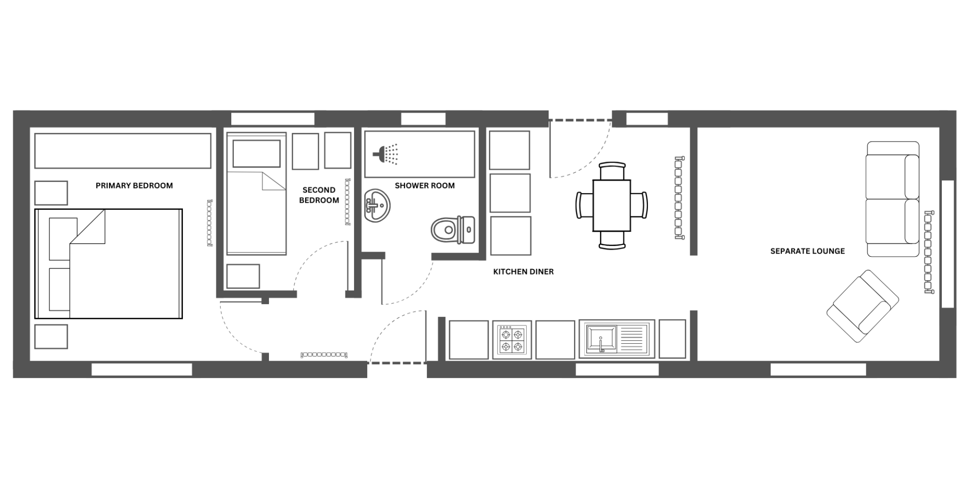
This brand new, fully-furnished Manor Lancaster (44'x12') luxury park home is perfect for those looking for a detached, easy to maintain, bungalow-style property. The home has an open plan kitchen, dining and living room, one double bedroom, one single bedroom and a shower room.
THE PARK
Exclusive retirement park for the over 50's. Offering a wonderful community lifestyle with like-minded people. Superbly landscaped the park is fronted by 3 acres of meadow running alongside the River Bourne.
Park homes are designed to the highest possible specifications, with premium fixtures and fittings. They are modern, high-quality homes and boast a close-knit community that is so valuable to residential park home living.
THE AREA
Stunning gardens and wine tasting tours are just a couple of the attractions you can experience in Surrey. There is expanses of ancient heathland, beautiful stretches of waterways and many stunning scenic landscapes for you to discover. The town of Addlestone was once the home of the Bleriot Aeroplane factory but is now a busy local town. The main high street in Addlestone has a mix of local shops, smaller sized business offices and a large supermarket.
Locally the River Wey and the Basingstoke Canal cater for leisure pursuits, Foxhills Golf and Country Club is a popular resort. There are a number of popular parks and open spaces including Victory Park and Sayes Court catering for both formal and informal pursuits.
HOUSE TO SELL?
Contact Quickmove for a free, no-obligation Part-Exchange valuation on this home. Enjoy a hassle-free move, with no estate agents’ fees or solicitors to pay. You even get to keep the keys to your existing property for 2 weeks after completion, so you can move out at your leisure.
Please note: manufacturer’s stock show home images have been used and may not be a 100% true representation of the property on-site. Specifications and layouts may differ, and some photos may include optional extras.
Site fees (at time of listing): £305 per month
Please note that the site fee (also known as pitch fee, or ground rent) is subject to change and reviewed annually. Ground rent can only be increased in line with the Consumer Price Index. For more information, please get in touch.
Tenure: Virtual Freehold
Virtual Freehold means that when buying a park home, you purchase the physical property outright and lease the land it sits on in perpetuity, for the entirety of the time the home is sited. These properties are not mortgageable, if you are uncertain or would like further advice, please consult a solicitor.
Council Tax Band: Single homes Band A. Twin homes Band B.
NOTE: The information in this property listing is correct to the best of our knowledge. We recommend any potential purchaser is aware of all details including park rules and conditions before sale completion. We also recommend consulting the Mobile Homes Act 2013 for conditions of any future sale of this property.





