Rooms
Property Features
- Fully furnished
- Community living
- Pet friendly
- Residential development
- Up to 100% part exchange available
- Over 50s
- Exceptionally high specification
- Brand new home
- Outstanding location
- Brand new design
Full Details
THE HOME
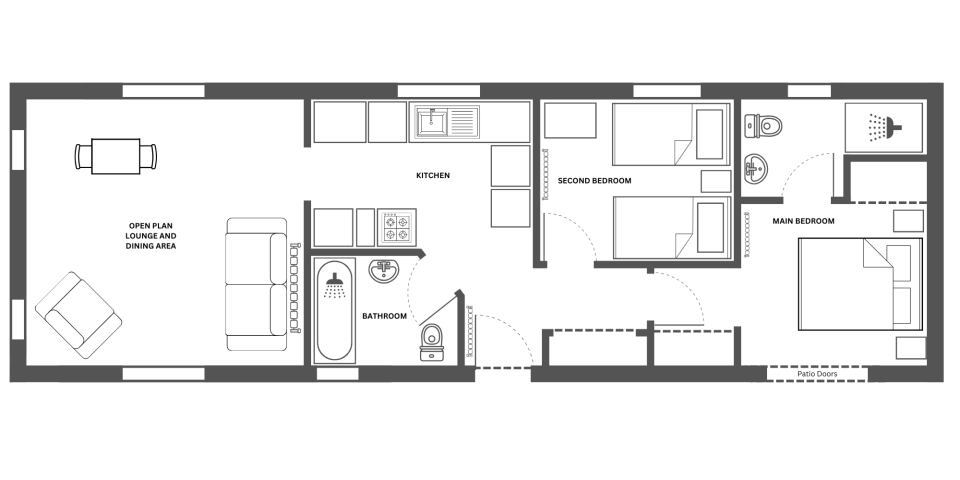
This brand new, fully furnished modern Manor Berkeley Plus (45'x14') park home is perfect for those looking for a detached, easy to maintain, bungalow-style property. The home boasts the latest construction techniques, design, and guarantees and enjoys modern full furnishings and integrated appliances. The home has a spacious kitchen, living and dining area, two bedrooms and two bathrooms.
THE PARK
This residential development is exclusive for the over 50s. It is conveniently situated on the outskirts of Bovey Tracey, a typical small Devon town with good shopping facilities. The Park features mature woodland, large lake and views of the rolling hills of Dartmoor. A bus service to Newton Abbot stops at the Park entrance. A mobile library calls fortnightly. Pets are considered (one dog or one cat).
THE AREA
There are many places of interest to explore, such as Torbay, the cathedral City of Exeter and of course the beauty of Dartmoor which is only a 10 minute drive away
All the new homes sited are fully furnished and have tiled roofs, mains gas central heating and double glazing.
HOUSE TO SELL?
GET UP TO 100% MARKET VALUE WITH PART EXCHANGE
Contact Quickmove for a free, no-obligation Part-Exchange valuation. At this development, you can receive up to 100% market value* for your home.
Enjoy a hassle-free move, with no estate agents’ fees or solicitors to pay. You even get to keep the keys to your existing property for 2 weeks after completion, so you can move out at your leisure.
*Market value of your home is likely selling price based on independent estate agents’ appraisals and part exchange assessment, subject to survey.
Please note: manufacturer’s stock show home images have been used and may not be a 100% true representation of the property on-site. Specifications and layouts may differ, and some photos may include optional extras.
Site fees (at time of listing): £289 per month
Please note that the site fee (also known as pitch fee, or ground rent) is subject to change and reviewed annually. Ground rent can only be increased in line with the Consumer Price Index. For more information, please get in touch.
Tenure: Virtual Freehold
Virtual Freehold means that when buying a park home, you purchase the physical property outright and lease the land it sits on in perpetuity, for the entirety of the time the home is sited. These properties are not mortgageable, if you are uncertain or would like further advice, please consult a solicitor.
Council Tax Band: A or B (Plot dependant)
NOTE: The information in this property listing is correct to the best of our knowledge. We recommend any potential purchaser is aware of all details including park rules and conditions before sale completion. We also recommend consulting the Mobile Homes Act 2013 for conditions of any future sale of this property.





