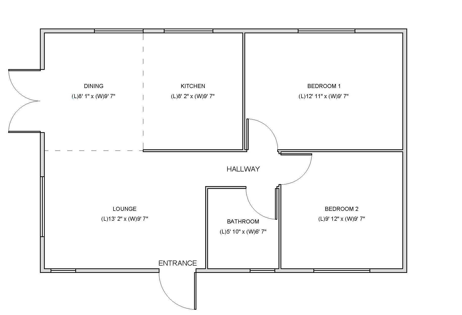
Rooms
Property Features
- Fully furnished
- Community living
- Residential development
- Exceptionally high specification
- Brand new home
- Modern design
- Part exchange for a quick sale
- Established park
- Over 45s
Full Details
THE HOME
This brand new, modern furnished (30'x20') luxury park home is perfect for those looking for a detached, easy to maintain, bungalow style retirement property in a modern secluded development. The home features a spacious kitchen with integrated appliances. Modern, comfortable furniture, two bedrooms and a bathroom.
THE PARK
If you’re searching for luxury bungalows for sale in Herefordshire, this modern bungalow development could be perfect for you. Positioned in a unique and historic location, this gated residential development sits within the walls of an old castle, with turrets and ancient walls still in place. Pets permitted when you buy a new home on this park.
Nestled in rural Herefordshire, park residents enjoy access to the park-owned country estate with beautiful countryside walks and views across the Bromyard Downs and Malvern Hills. The park boasts a lovely clubhouse, laundry facilities, hair salon and most importantly a warm, friendly and active community of residents. Approximately a five-minute drive away is the highly-attractive Sapey Golf & Country Club which offers a discount for park residents. And hosts several events including quiz nights.
THE AREA
Approximately 2.5 miles away is the beautiful town of Bromyard, twinned with Athis-de-l’Orne, Normandy, this beautiful market town in Herefordshire, situated in the valley of the River Frome, near to the county border with Worcestershire.
To the west lies the Border region of Wales, famous for its black and white villages. Within the local surroundings of this gorgeous and historic park, you can find a wide range of farms, many of them selling locally grown fresh produce and ingredients.
- Brockhampton Estate - 4 miles
- Witley Court & Gardens - 11 miles
- Worcester - 15 miles
- Greyfriars's House & Garden - 16 miles
- Hereford - 17 miles
- Ludlow Castle - 22 miles
- Gloucester - 33 miles
Site fees: £242.12 per month
Please note that the site fee (also known as 'pitch fee', or 'ground rent') is subject to change and reviewed annually. Ground rent can only be increased in line with the Consumer Price Index. For more information, please get in touch.
Tenure: 'Virtual Freehold'
'Virtual Freehold' means that when buying a park home, you purchase the physical property outright and lease the land it sits on in perpetuity, for the entirety of the time the home is sited. These properties are not mortgageable. Please consult a solicitor for further information.
Please note: manufacturer’s stock show home images have been used and may not be a 100% true representation of the property on-site. Specifications and layouts may differ, and some photos may include optional extras.
HOUSE TO SELL?
Hassle-free property Part-Exchange is available from recommended part-exchange specialists Quickmove Properties, with no estate agent fees, no solicitors fees and no market uncertainty.
Council Tax Band A
NOTE: The information in this property listing is correct to the best of our knowledge. We recommend any potential purchaser is aware of all details including park rules and conditions before sale completion. We also recommend consulting the Mobile Homes Act 2013 for conditions of any future sale of this property.





