Rooms
Property Features
- Part Exchange available
- Fully furnished
- Over 50s
- Exceptionally high specification
- Brand new home
- Coming soon
- No pets
- Outstanding location
- Stamp Duty exempt
- Residential park
Full Details
THE HOME
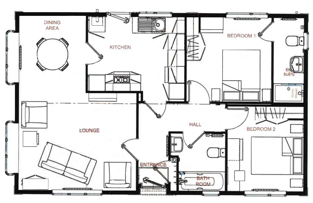
This brand new, modern-furnished Omar Regency (35'x22') luxury park home is perfect for those looking for a detached, easy to maintain, bungalow-style property. The home features fully fitted kitchen with integrated appliances, a comfortable living area, and two double bedrooms. The master bedroom has an en suite.
THE PARK
The riverside village of Althorne, overlooking the river Crouch is the lovely setting for this park, 15 miles from Chelmsford and 3 miles from Burnham-on-Crouch. Sailing, fishing and a boat marina are available locally, with several good golf clubs. A bus service runs from the park to Chelmsford fortnightly, another bus service runs from the park to Basildon every Thursday and Friday. The Village Link bus runs to South Woodham, Ferrers and Burnham-on-Crouch, Monday to Saturday. The Railway Station is approximately one mile away.
THE AREA
The village of Althorne has a post office and general store. Burnham-on-Crouch has a good sized supermarket and doctor and dentist. It is very popular with retired or semi-retired persons who want to lead an active life.
Local amenities:
- Bus stop: outside park
- Train station: 0.9 miles
- Local shop: 4.1 miles
- Doctors surgery: 4.1 miles
Site fees (at time of listing): £249 per month
Please note that the site fee (also known as pitch fee, or ground rent) is subject to change and reviewed annually. Ground rent can only be increased in line with the Consumer Price Index. For more information, please get in touch.
Tenure: Virtual Freehold
Virtual Freehold means that when buying a park home, you purchase the physical property outright and lease the land it sits on in perpetuity, for the entirety of the time the home is sited. These properties are not mortgageable. Please consult a solicitor for further information.
Council Tax Band: A
NOTE: The information in this property listing is correct to the best of our knowledge. We recommend any potential purchaser is aware of all details including park rules and conditions before sale completion. We also recommend consulting the Mobile Homes Act 2013 for conditions of any future sale of this property.
HOUSE TO SELL?
Hassle-free Property Part-Exchange is available from recommended part-exchange specialists Quickmove Properties, with no estate agent fees, no solicitor's fees and no market uncertainty.
Some images may depict a show home and may not be a 100% true representation of the property on-site. Specifications and layouts may differ and some photos may include optional extras.





