Rooms
Property Features
- Community living
- Residential development
- Over 50s
- Countryside location
- Close to the coast
- Pre-owned park home
- Part exchange for a quick sale
- Property is vacant
- Unfurnished
Full Details
THE HOME
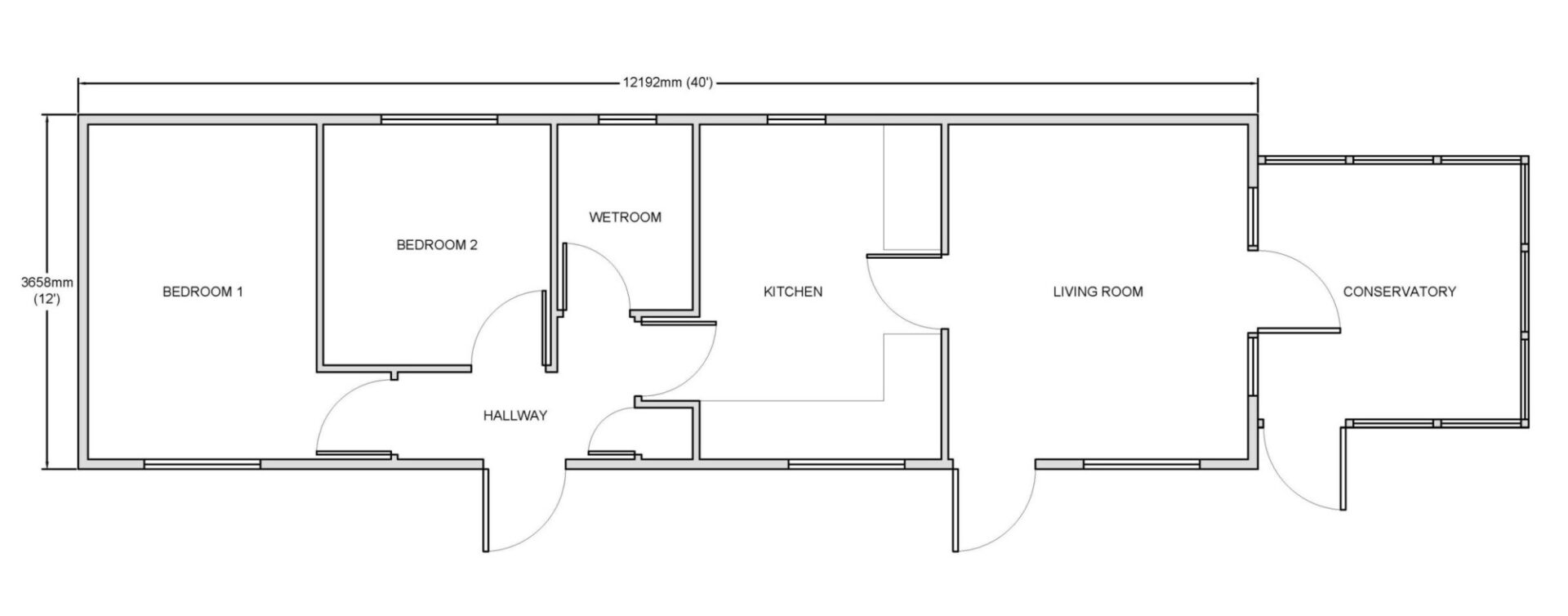
This pre-owned (40'x12') park home is perfect for those looking for a detached, easy to maintain, bungalow style property. The home has a kitchen and diner with base and eye level unit. There is a lounge with a feature wall and an electric fireplace, and a conservatory leading from the lounge. The home ha sone double and one single bedroom and a wet room.
The location of this home is one of its main benefits with views over open fields. The plot is located at the end of a road giving more privacy than usual and is gives larger than average outside living space
THE PARK
This peaceful, tree-lined park has great community spirit. All of the homes are well spaced apart to provide ample privacy, and a dedicated maintenance team keep the park looking lovely. Pets permitted when you buy a new home on this park.
THE AREA
Just a short drive away is the stunning coast and countryside of North Wales featuring lots of fascinating ancient culture and heritage. Close to the park are shops and amenities located in Queensferry. Liverpool city centre in 25 miles from the park and is full of entertainment venues, high street shopping, restaurants and historic sites.
Site fees: £212.99 per month
Please note that the site fee (also known as 'pitch fee', or 'ground rent') is subject to change and reviewed annually. Ground rent can only be increased in line with the Consumer Price Index. For more information, please get in touch.
Tenure: 'Virtual Freehold'
'Virtual Freehold' means that when buying a park home, you purchase the physical property outright and lease the land it sits on in perpetuity, for the entirety of the time the home is sited. These properties are not mortgageable. Please consult a solicitor for further information.
HOUSE TO SELL?
Hassle-free property Part-Exchange is available from recommended part-exchange specialists Quickmove Properties, with no estate agent fees, no solicitors fees and no market uncertainty.
Council Tax Band A or B
NOTE: The information in this property listing is correct to the best of our knowledge. We recommend any potential purchaser is aware of all details including park rules and conditions before sale completion. We also recommend consulting the Mobile Homes Act 2013 for conditions of any future sale of this property.





