Rooms
Property Features
- Part Exchange available
- Fully furnished
- Community living
- Residential development
- Brand new home
- Train station nearby
- Pets welcome
- Countryside location
- Coming soon
- Over 45s
Full Details
THE HOME
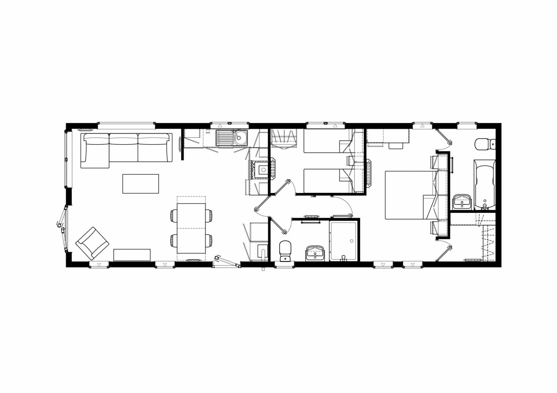
This brand new, modern-furnished Omar Arden (45'x15') luxury park home is perfect for those looking for a detached, easy to maintain, bungalow-style property. The home has an open plan layout to the kitchen, dining and living rooms, there are two bedrooms and two bathrooms.
THE PARK
This residential development benefits from stunning views of the Yorkshire Dales National Park and moorland. The elevated positions of the homes provides wonderful views from each home on the park. The homes are exclusive for the over 45s and are pet friendly.
THE AREA
Nearby Ilkley is a friendly town with an abundance of independent shops and boutiques, supermarkets, places to eat and drink and all the amenities you will need right on our doorstep. Services include GP’s, dentists, hairdressers and beauty salons. The area surrounding Ilkley has fantastic countryside for walking and hiking and is home to Ilkley Cycling Club, one of the largest clubs in the UK. The park is surrounded by open skies and jaw dropping views of the magnificent West Yorkshire countryside, with the bonus of being in close proximity to some of Yorkshire’s most popular towns and cities including Leeds and Halifax.
Local amenities:
- Nearest station – Menston – 1 mile
- Otley – 1.5 miles
- Nearest hospital – Wharfedale – 2 miles
- Nearest doctors – Ilkley and Wharfedale Medical Practice – 8 miles
- Brandford – 9 miles
- Leeds – 10.9 miles
HOUSE TO SELL?
Contact Quickmove for a free, no-obligation Part-Exchange valuation on this home. Enjoy a hassle-free move, with no estate agents’ fees or solicitors to pay. You even get to keep the keys to your existing property for 2 weeks after completion, so you can move out at your leisure.
Please note: manufacturer’s stock show home images have been used and may not be a 100% true representation of the property on-site. Specifications and layouts may differ, and some photos may include optional extras.
Site fees (at time of listing): £225 per month
Please note that the site fee (also known as pitch fee, or ground rent) is subject to change and reviewed annually. Ground rent can only be increased in line with the Consumer Price Index. For more information, please get in touch.
Tenure: Virtual Freehold
Virtual Freehold means that when buying a park home, you purchase the physical property outright and lease the land it sits on in perpetuity, for the entirety of the time the home is sited. These properties are not mortgageable. Please consult a solicitor for further information.
Council Tax Band: A
NOTE: The information in this property listing is correct to the best of our knowledge. We recommend any potential purchaser is aware of all details including park rules and conditions before sale completion. We also recommend consulting the Mobile Homes Act 2013 for conditions of any future sale of this property.
QMPREF-2076





