Rooms
Property Features
- Part Exchange available
- Two bedrooms
- Over 50s
- Exceptionally high specification
- Brand new home
- Modern design
- Shops and amenities nearby
- Integrated appliances
- Established park
Full Details
THE HOME
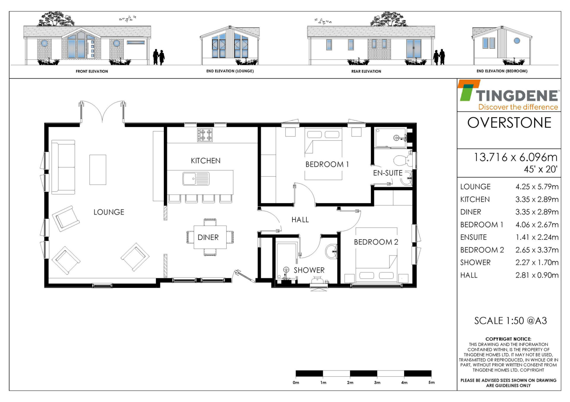
A spacious two double bedroom Tingdene Overstone (45'x20') detached park home bungalow located on this popular residential park for the over 50s. This home has a spacious kitchen, lounge and dining area, a master bedroom with en-suite shower room, further bathroom, and parking.
THE PARK
This development in Lincolnshire is an exclusive, brand new, park home estate for retired and semi-retired over 50s. Situated in beautiful countryside, near the village of Coningsby, it is ideally located for those who are looking forward to relaxing and enjoying their retirement. This park is ideal for buyers who are wishing to downsize from their bricks and mortar home and start a new chapter in their life.
THE AREA
Situated close to the river Witham with its fishing and moorings, the area is famous for its RAF base, fighter jets and the Battle of Britain Memorial site. There is a local bus service from outside the park and a doctor, pubs and supermarkets are just a mile away in Coningsby. The wonderful, rugged, East Coast is just a 45 minute drive away, as are the nearby towns of Lincoln, Boston and Sleaford.
HOUSE TO SELL?
Contact Quickmove for a free, no-obligation Part-Exchange valuation on this home. Enjoy a hassle-free move, with no estate agents’ fees or solicitors to pay. You even get to keep the keys to your existing property for 2 weeks after completion, so you can move out at your leisure.
Site fees: £216.41 per month
Please note that the site fee (also known as pitch fee, or ground rent) is subject to change and reviewed annually. Ground rent can only be increased in line with the Consumer Price Index. For more information, please get in touch.
Tenure: Virtual Freehold
Virtual Freehold means that when buying a park home, you purchase the physical property outright and lease the land it sits on in perpetuity, for the entirety of the time the home is sited. These properties are not mortgageable. Please consult a solicitor for further information.
Council Tax Band: A
NOTE: The information in this property listing is correct to the best of our knowledge. We recommend any potential purchaser is aware of all details including park rules and conditions before sale completion. We also recommend consulting the Mobile Homes Act 2013 for conditions of any future sale of this property.





