Rooms
Property Features
- Part Exchange available
- Community living
- Residential development
- Over 50s
- Popular residential park
- Fully fitted kitchen
- Modern design
- Pre-owned park home
- Property is vacant
- Unfurnished
Full Details
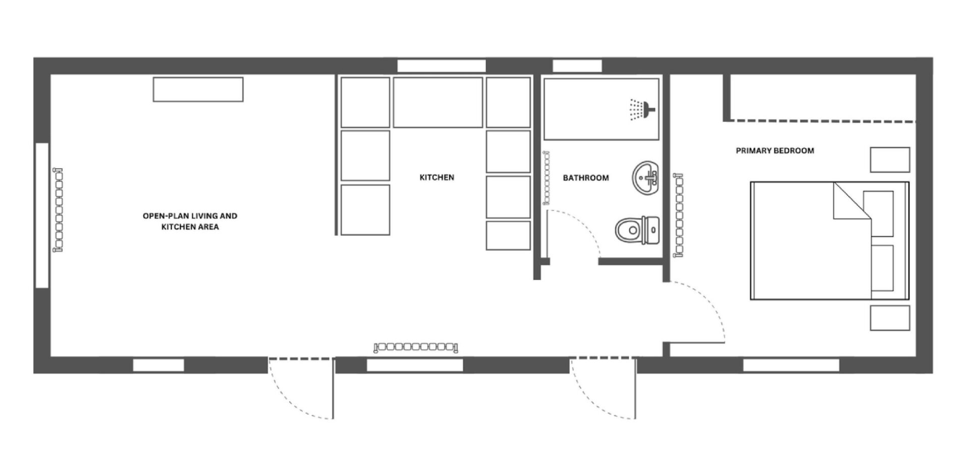
This pre-owned, vacant Prestige Minuet (36'x12') park home is perfect for those looking for a detached, easy to maintain, bungalow-style property. The home has an open plan lounge, dining area and kitchen. Leading through to the hallway, the home has shower room and a double bedroom.
The park is located in an established and sought after location approximately four miles north of Plymouth city centre. Local amenities include a post office, general store, hairdressers and a Park and Ride offering good links to the city and North. Exclusive for the over 50's, this development is ideal for community living in later life.
Access available to Derriford Hospital, the University of St Mark and St John, Devonshire Health & Leisure Centre, Tesco superstore at Woolwell and Dartmoor National Park are located two miles north. The area is largely flanked by woodlands that provide pleasant walks to Plymbridge. The Stannary town of Tavistock is located twelve miles away making excursions both enjoyable and convenient.
Please note: manufacturer’s stock show home images have been used and may not be a 100% true representation of the property on-site. Specifications and layouts may differ, and some photos may include optional extras.
Site fees (at time of listing): £253 per month
Please note that the site fee (also known as pitch fee, or ground rent) is subject to change and reviewed annually. Ground rent can only be increased in line with the Consumer Price Index. For more information, please get in touch.
Tenure: Virtual Freehold
Virtual Freehold means that when buying a park home, you purchase the physical property outright and lease the land it sits on in perpetuity, for the entirety of the time the home is sited. These properties are not mortgageable, if you are uncertain or would like further advice, please consult a solicitor.
Council Tax Band: A
NOTE: The information in this property listing is correct to the best of our knowledge. We recommend any potential purchaser is aware of all details including park rules and conditions before sale completion. We also recommend consulting the Mobile Homes Act 2013 for conditions of any future sale of this property.





