Rooms
Property Features
- Pet friendly
- Over 50s
- Brand new home
- Garden space
- Fully furnished
- Shops and amenities nearby
- Community living
- Residential park
- Established park
Full Details
MASSIVE SALE! WAS £269,950 NOW £249,995
THE HOME
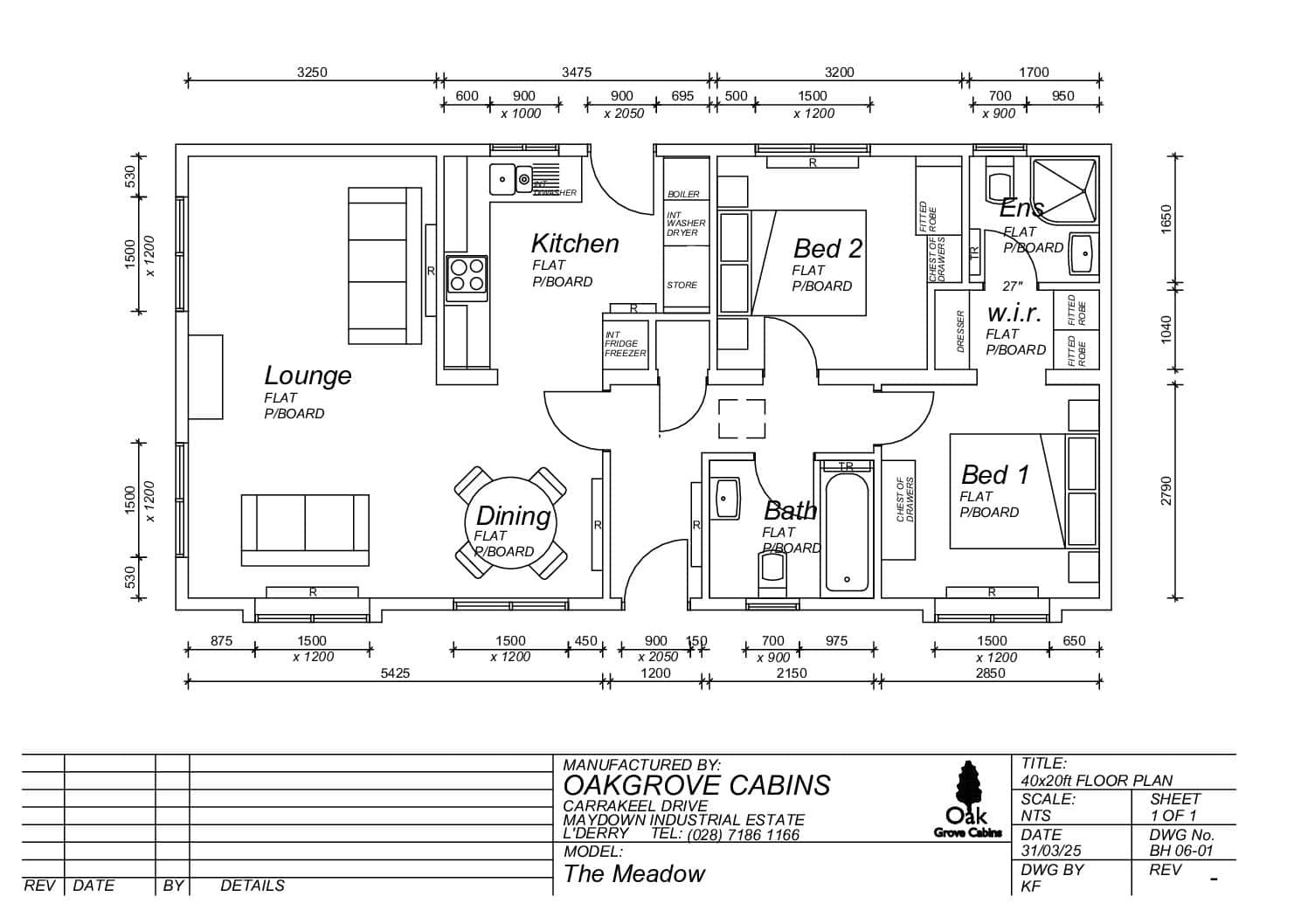
This brand new, modern-furnished Oakgrove Meadow (40'x20') park home is perfect for those looking for a detached, easy to maintain, bungalow-style retirement property. The homes features a modern kitchen, lounge and dining area, two double bedrooms, an en suite and a bathroom.
THE PARK
This established residential development is exclusively for the over 50s. The quiet and peaceful park set in ancient woodlands and open heath is pet-friendly and a short walk from local amenities. A short walk from the park is Avon Heath Country Park and Hurn Forest. The park has easy access to public transport, with a bus stop nearby, local taxis and airports in Southampton and Bournemouth.
THE AREA
The park is located between the market towns of Ringwood and Ferndown, with the seaside town of Poole just 12 miles away. Ringwood has plenty of historic character with quaint and modern shops, restaurants, pubs and cafes and Ferndown features all of the required amenities as well as an award winning golf course.
Local Attractions
- Leisure Centre - Ferndown
- Avon Heath Country Park
- Seaside towns of Poole and Bournemouth
Amenities
- Doctors’ Surgeries: 2–4 miles
- Local Shops: 1 mile
- Supermarket: 2 miles
- Hospitals: Bournemouth and Southampton
HOUSE TO SELL?
Contact Quickmove for a free, no-obligation Part-Exchange valuation on this home. Enjoy a hassle-free move, with no estate agents’ fees or solicitors to pay. You even get to keep the keys to your existing property for 2 weeks after completion, so you can move out at your leisure.
Site fees (at time of listing): £250 per month
Please note that the site fee (also known as pitch fee, or ground rent) is subject to change and reviewed annually. Ground rent can only be increased in line with the Retail Price Index. For more information, please get in touch.
Tenure: Virtual Freehold
Virtual Freehold means that when buying a park home, you purchase the physical property outright and lease the land it sits on in perpetuity, for the entirety of the time the home is sited. These properties are not mortgageable. Please consult a solicitor for further information.
Council Tax Band: A
NOTE: The information in this property listing is correct to the best of our knowledge. We recommend any potential purchaser is aware of all details including park rules and conditions before sale completion. We also recommend consulting the Mobile Homes Act 2013 for conditions of any future sale of this property.





