Rooms
1 Bedrooms
1 Bathrooms
Features
Description
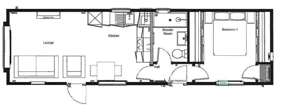
Floorplan
Brochure
Map
Features
Property Features
- Part Exchange available
- Community living
- Over 50s
- Exceptionally high specification
- Brand new home
- Fully fitted kitchen
- Retirement property
- One double bedroom
- Semi-rural location
- Brand new design
Description
Full Details
Floorplan
Brochure
Map





