Rooms
Property Features
- Part Exchange available
- Fully furnished
- Over 50s
- Brand new home
- Fully fitted kitchen
- Retirement property
- Shops and amenities nearby
- Residential park
- Established park
- Countryside walks
Full Details
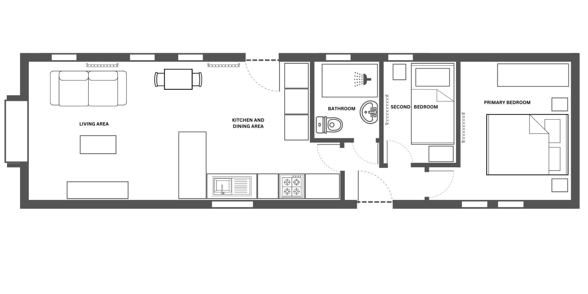
THE HOME
This home is perfect for those looking for a detached, easy to maintain, bungalow style retirement property. The Pathfinder Bespoke is an airy and light home. It has a wonderful lounge/fitted kitchen with integrated appliances. The home features two bedrooms with plenty of storage. Beside the bedroom is the family bathroom which is complete with shower facilities. This home also comes with it's own garden shed for extra storage.
THE PARK
The stunning home is sited on an established residential development for those aged 50 and over. This welcoming community has a thriving social club with a regular bus service nearby. It is set in a delightful setting 4 miles from the centre of Taunton, and 23 miles from the pleasant town of Yeovil, with its excellent shopping facilities, and good rail service both to London and the South West.
THE AREA
Surrounding this park there are many places of interest to explore in the Somerset countryside, including the nearby village of Montacute with its outstanding Tudor House and beautiful grounds. Milk and newspapers are delivered daily and a local superstore is only a few minutes drive away.
HOUSE TO SELL?
Hassle-free Property Part-Exchange is available from recommended part-exchange specialists Quickmove Properties, with no estate agent fees, no solicitors fees and no market uncertainty.
Site fees (at time of listing): £276 per month
Please note that the site fee (also known as pitch fee, or ground rent) is subject to change and reviewed annually. Ground rent can only be increased in line with the Consumer Price Index. For more information, please get in touch.
Tenure: Virtual Freehold
Virtual Freehold means that when buying a park home, you purchase the physical property outright and lease the land it sits on in perpetuity, for the entirety of the time the home is sited. These properties are not mortgageable. Please consult a solicitor for further information.
Council Tax Band: A
NOTE: The information in this property listing is correct to the best of our knowledge. We recommend any potential purchaser is aware of all details including park rules and conditions before sale completion. We also recommend consulting the Mobile Homes Act 2013 for conditions of any future sale of this property.





