Rooms
Property Features
- Part Exchange available
- Fully furnished
- Community living
- Pet friendly
- Residential development
- Two double bedrooms
- Brand new home
- Countryside location
- Modern design
- Over 45s
Full Details
THE HOME
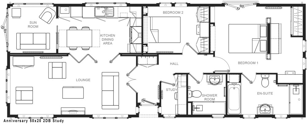
This brand-new, modern-furnished Omar Anniversary (50'x20') luxury park home is perfect for those looking for a detached, easy-to-maintain, bungalow-style property. The home has a spacious kitchen with integrated appliances, and a dining area, leading to a comfortable living room. There are two double bedrooms, an en suite and a bathroom.
THE PARK
This residential 20-acre development is nestled in the countryside on the outskirts of Watton. The homes are exclusive for those over 45 and pets are welcome. The park has a lovely and welcoming community with 148 residents.
The park home lifestyle provides community living for like-minded people. The park is landscaped and private, to offer safe and secure living. Built in a countryside location, the park offers their residents the opportunity for an active lifestyle that is also suitable for pets.
THE AREA
Watton town is a short walk from the development, where you can find essential amenities including a supermarket, GP surgery, pharmacy and a post office. A weekly farmers market is held here every week and residents can enjoy quaint cafes and pubs. The centre of Norwich is a 45 minute drive from the park where you can find historic sites, high street shopping and entertainment venues.
Local amenities
Bus stop: 0.6 miles
Doctors surgery: 0.8 miles
Tesco superstore:0.9
Lidl: 1 mile
HOUSE TO SELL?
Contact Quickmove for a free, no-obligation Part-Exchange valuation on this home. Enjoy a hassle-free move, with no estate agents’ fees or solicitors to pay. You even get to keep the keys to your existing property for 2 weeks after completion, so you can move out at your leisure.
Please note: manufacturer’s stock show home images have been used and may not be a 100% true representation of the property on-site. Specifications and layouts may differ, and some photos may include optional extras.
Site fees (at time of listing): £286.42 per month
Please note that the site fee (also known as pitch fee, or ground rent) is subject to change and reviewed annually. Ground rent can only be increased in line with the Consumer Price Index. For more information, please get in touch.
Tenure: Virtual Freehold
Virtual Freehold means that when buying a park home, you purchase the physical property outright and lease the land it sits on in perpetuity, for the entirety of the time the home is sited. These properties are not mortgageable, if you are uncertain or would like further advice, please consult a solicitor.
Council Tax Band: A
NOTE: The information in this property listing is correct to the best of our knowledge. We recommend any potential purchaser is aware of all details including park rules and conditions before sale completion. We also recommend consulting the Mobile Homes Act 2013 for conditions of any future sale of this property.





